By pioner161

0

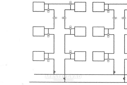
Схема системы центрального отопления с колоннами стояков

Categories : Отопление

Централизованные системы с установленными колоннами или вертикальным распределением больше не применяются. Эти системы используются в старых зданиях и состоят из распределительного контура с кольцом в основании здания с двойными трубами для подачи воды и возврата в котел и вертикальных подъемов.

Вертикальные производные (смонтированные колонны) начинаются от отопительной установки — это трубы, которые поднимаются по направлению к радиаторам на разных этажах, расположенным на вертикали каждой колонны трубы. Этот тип схемы не учитывает различные квартиры, а только радиаторы, расположенные вертикально. Для упрощения подъема радиаторы и трубы размещаются на наружных стенах.

Схема системы центрального отопления с вертикальными колоннами является решением, которое больше не принимается, так как имеет ряд недостатков:

Счетчики должны быть установлены на каждом радиаторе (невозможно определить количество воды, поступающей в каждую квартиру), а не по одному на каждую квартиру.
Трубы находятся на внешних стенах с большим рассеиванием тепла.
Каждый отдельный вертикальный столбец требует балансировки расхода через клапаны.
Сложность в оценке перепадов давления в различных контурах.

Первое, что делает их в настоящее время непригодными для использования. Централизованная система стояков не позволяет точно рассчитать потребление одной квартиры, так как невозможно точно определить подачу воды. Счетчики на каждом радиаторе обязаны производить косвенное считывание показаний. Это делает их непригодными для новых систем.